Commercial property for sale in High Street, Mansfield Woodhouse, NG19
Key features
- High street location
- Large commercial premises spread over three floors
- Multiple business opportunities
- For Sale via Auction
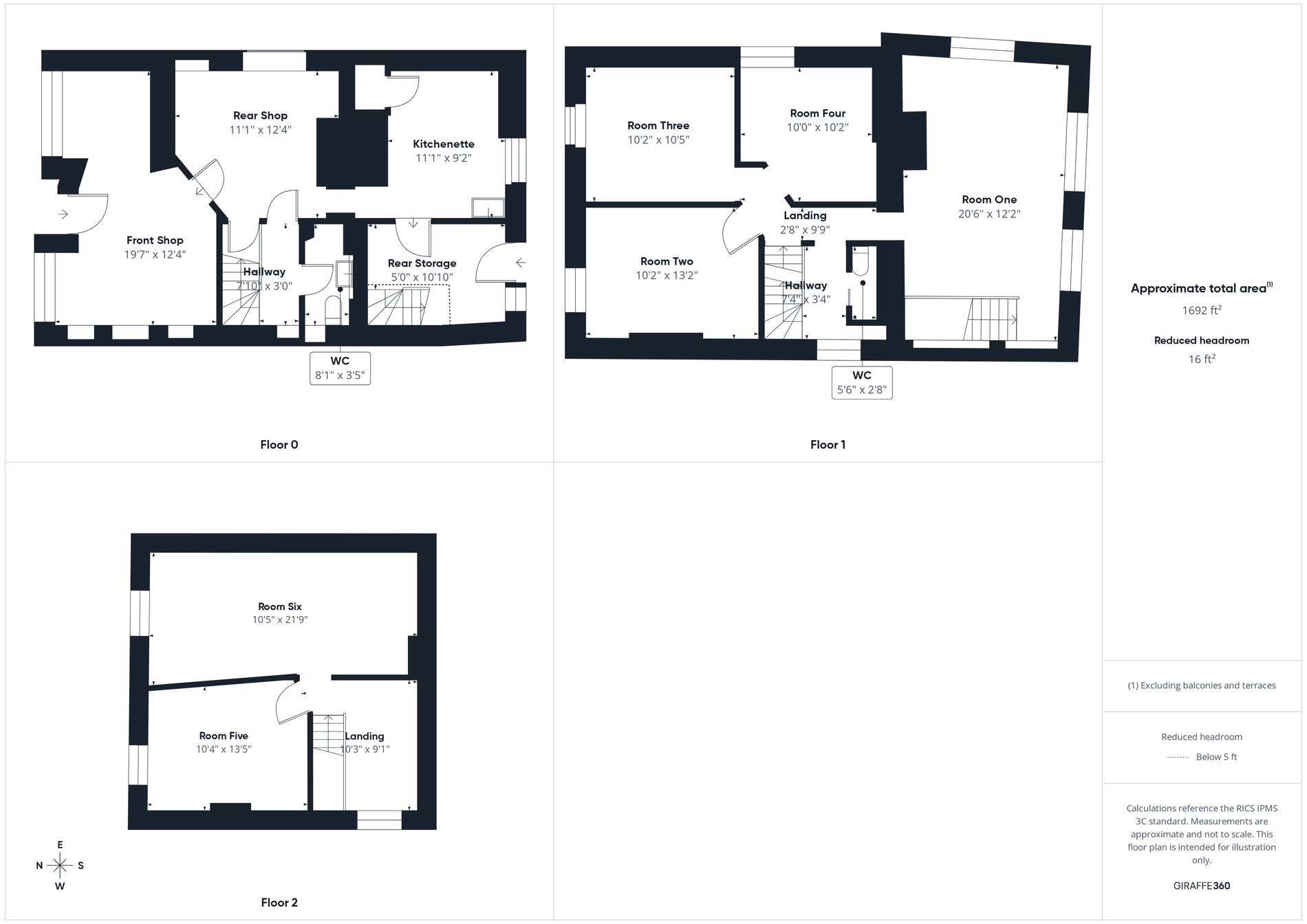
Floorplan

Virtual Tour
A wonderfully large commercial property situated on the main high street in the heart of Mansfield Woodhouse.
Auctioneers Additional Comments
Pattinson Auction are working in Partnership with the marketing agent on this online auction sale and are referred to below as 'The Auctioneer'.
This auction lot is being sold either under conditional (Modern) or unconditional (Traditional) auction terms and overseen by the auctioneer in partnership with the marketing agent.
The property is available to be viewed strictly by appointment only via the Marketing Agent or The Auctioneer. Bids can be made via the Marketing Agents or via The Auctioneers website.
Please be aware that any enquiry, bid or viewing of the subject property will require your details being shared between both any marketing agent and The Auctioneer in order that all matters can be dealt with effectively.
The property is being sold via a transparent online auction.
In order to submit a bid upon any property being marketed by The Auctioneer, all bidders/buyers will be required to adhere to a verification of identity process in accordance with Anti Money Laundering procedures. Bids can be submitted at any time and from anywhere.
Our verification process is in place to ensure that AML procedure are carried out in accordance with the law.
The advertised price is commonly referred to as a ‘Starting Bid’ or ‘Guide Price’ and is accompanied by a ‘Reserve Price’. The ‘Reserve Price’ is confidential to the seller and the auctioneer and will typically be within a range above or below 10% of the ‘Guide Price’ / ‘Starting Bid’.
These prices are subject to change.
An auction can be closed at any time with the auctioneer permitting for the property (the lot) to be sold prior to the end of the auction.
A Legal Pack associated with this particular property is available to view upon request and contains details relevant to the legal documentation enabling all interested parties to make an informed decision prior to bidding. The Legal Pack will also outline the buyers’ obligations and sellers’ commitments. It is strongly advised that you seek the counsel of a solicitor prior to proceeding with any property and/or Land Title purchase.
Auctioneers Additional Comments
In order to secure the property and ensure commitment from the seller, upon exchange of contracts the successful bidder will be expected to pay a non-refundable deposit equivalent to 5% of the purchase price of the property. The deposit will be a contribution to the purchase price. A non-refundable reservation fee up to 6% inc VAT (subject to a minimum which could be up to £7,200 inc VAT) is also required to be paid upon agreement of sale. The Reservation Fee is in addition to the agreed purchase price and consideration should be made by the purchaser in relation to any Stamp Duty Land Tax liability associated with overall purchase costs.
Both the Marketing Agent and The Auctioneer may believe necessary or beneficial to the customer to pass their details to third party service suppliers, from which a referral fee may be obtained. There is no requirement or indeed obligation to use these recommended suppliers or services.
Front Shop 19' 7" x 12' 4" (5.97m x 3.76m) A large open space with vinyl flooring, two large front windows and door leading to the main high street. An opening into the back shop.
Rear Shop 12' 4" x 11' 1" (3.76m x 3.38m) With vinyl flooring, radiator, window to the side, an opening into the kitchenette and doors leading to the inner hall and cellar.
Cellar Additional storage space
Inner Hall 7' 10" x 3' 0" (2.39m x 0.91m) With carpet flooring, window to the side aspect. stairs off to the first floor and a door leading intro the clock room.
Cloakroom 8' 1" x 3' 5" (2.46m x 1.04m) With low flush WC and hand wash basin.
Kitchenette 11' 1" x 9' 2" (3.38m x 2.79m) With wall and base units, roll top worksurface and stainless steel sink. Window to the rear, carpet flooring radiator and store cupboard housing combi boiler. a door leads into the back storage room.
Rear Storage Room10' 10" x 5' 0" (3.30m x 1.52m) With part tiled flooring, stairs off to the first floor and a door leading to the rear parking area.
First Floor landing7' 4" x 3' 4" (2.24m x 1.02m) With carpet flooring.
Room One 20' 6" x 12' 2" (6.25m x 3.71m) With carpet flooring, two radiators and four windows.
Room Two 13' 2" x 10' 2" (4.01m x 3.10m) With carpet flooring, radiator and window.
Room Three 10' 5" x 10' 2" (3.17m x 3.10m) With carpet flooring, radiator and window.
Room Four 10' 2" x 10' 0" (3.10m x 3.05m) With carpet flooring, radiator and window.
Inner Hallway 7' 4" x 3' 4" (2.24m x 1.02m) With carpet flooring and window. Stairs off to the second floor.
Cloakroom 5' 6" x 2' 8" (1.68m x 0.81m) With low flush WC and hand wash basin.
Second Floor Landing 10' 3" x 9' 1" (3.12m x 2.77m) With carpet flooring and window.
Room Five 21' 9" x 10' 5" (6.63m x 3.17m) With carpet flooring, radiator and window.
Room Six 13' 5" x 10' 4" (4.09m x 3.15m) With carpet flooring, radiator and window.
Outside With two parking space to the rear.
Read more















