3 bedrooms
3 bathrooms
1 reception
3 bedrooms
3 bathrooms
1 reception


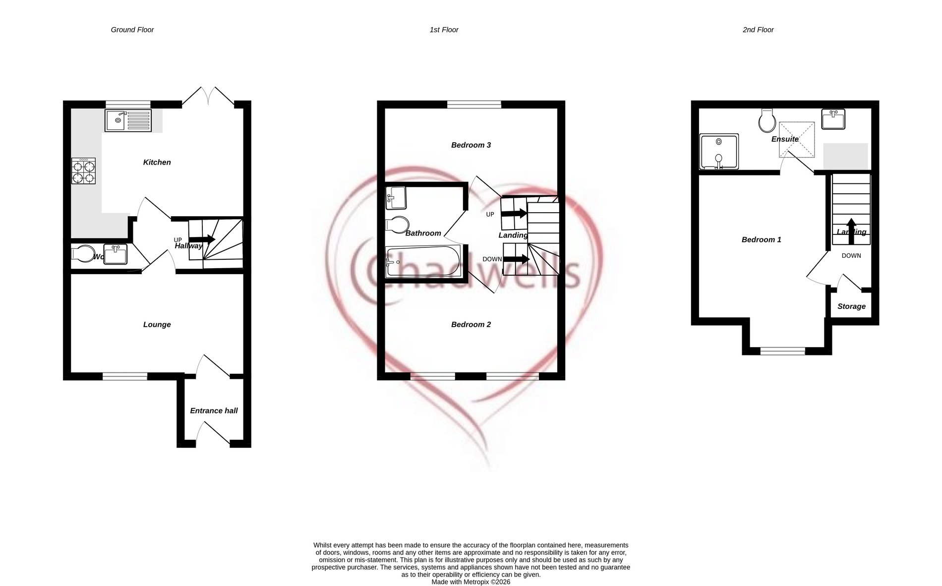
Discover the perfect family home in the heart of Clipstone Village with this stunning 3-bedroom, 3-bathroom town house, offering spacious living and modern comforts. Boasting a generous reception room, well-appointed kitchen and WC to the ground floor. With the first floor housing two of the generous bedrooms and family bathroom, Onto the second floor where you will find the master bedroom with a private en-suite, ensuring convenience and privacy. Outside, the property benefits from a charming, low-maintenance garden perfect for outdoor dining and children's play, alongside allocated parking for hassle-free convenience. Situated in a friendly and sought-after community, this town house offers easy access to local amenities, schools, and transport links, making it a fantastic choice for families or professionals seeking a balance of comfort, style, and practicality. Don’t miss the opportunity to make this exceptional Clipstone Village home yours – it’s ready to welcome you with open arms and modern living at its best.
Entrance HallEntered through a composite door to front of the property and having vinyl flooring and ceiling light fitting.
Lounge3.61m x 4.44m (11' 10" x 14' 7") Having uPVC window to front aspect, carpet flooring, TV point and BT point and under stairs cupboard with high speed internet connections installed.
Kitchen3.56m x 2.57m (11' 8" x 8' 5") Fitted with a range of wall and base units having rolltop work surfaces over inset with a stainless steel sink, drainer and mixer tap. Integrated appliances include electric oven, gas hob and extractor hood over. Space and plumbing for washing machine, slim line dishwasher and upright fridge freezer. Vinyl flooring, radiator, uPVC window to rear and uPVC French doors opening onto the rear garden.
Downstairs WCHaving low flush WC, wall mounted hand basin, radiator and vinyl flooring.
First Floor LandingWith carpet flooring, radiator and pendant light fitting.
Bedroom Two3.61m x 3.20m (11' 10" x 10' 6") Having carpet flooring, two uPVC windows to the front aspect, radiator and pendant light fitting.
Bedroom Three2.67m x 3.56m (8' 9" x 11' 8") Having carpet flooring, uPVC window to the rear aspect, pendant light fitting and radiator.
Family BathroomFitted with a three piece suite comprising white panel bath, pedestal wash basin and low flush WC. Vinyl flooring, tiled splash backs, ceiling light fitting, radiator and extractor fan.
Second Floor LandingHaving carpet flooring and built in storage cupboard.
Master Bedroom3.96m x 2.59m (13' 0" x 8' 6") Having carpet flooring, uPVC window to the front aspect, pendant light fitting, loft access and radiator.
EnsuiteFitted with single shower cubicle, pedestal wash basin and low flush WC. Vinyl flooring, tiled splash backs, ceiling light fitting, radiator and Velux window.
ExternallyTo the front of the property is one allocated parking space with a fully enclosed garden to the rear aspect which is mainly laid to lawn with a patio area.
Read moreBased on a monthly rental price of £925 you'd need an income of * per month or * per annum.
If a guarantor is required, they'll need an income of * per annum.