3 bedrooms
1 bathroom
2 receptions
3 bedrooms
1 bathroom
2 receptions


Discover this 3-bedroom terrace home in the heart of Langwith Junction offering great potential for adding your own personal touches. Boasting two spacious reception rooms, this property offers versatile living spaces ideal for relaxing and entertaining. The well-proportioned bedrooms provide ample room for a growing family, while the bathroom complements the home's practical layout. Located in a friendly community, this terraced house is close to local amenities and excellent transport links, making daily commuting and shopping convenient. Whether you’re starting out or looking to upsize, this home combines comfort, functionality, and a prime location. Don’t miss this fantastic opportunity to add your own stamp to this property in Langwith Junction.
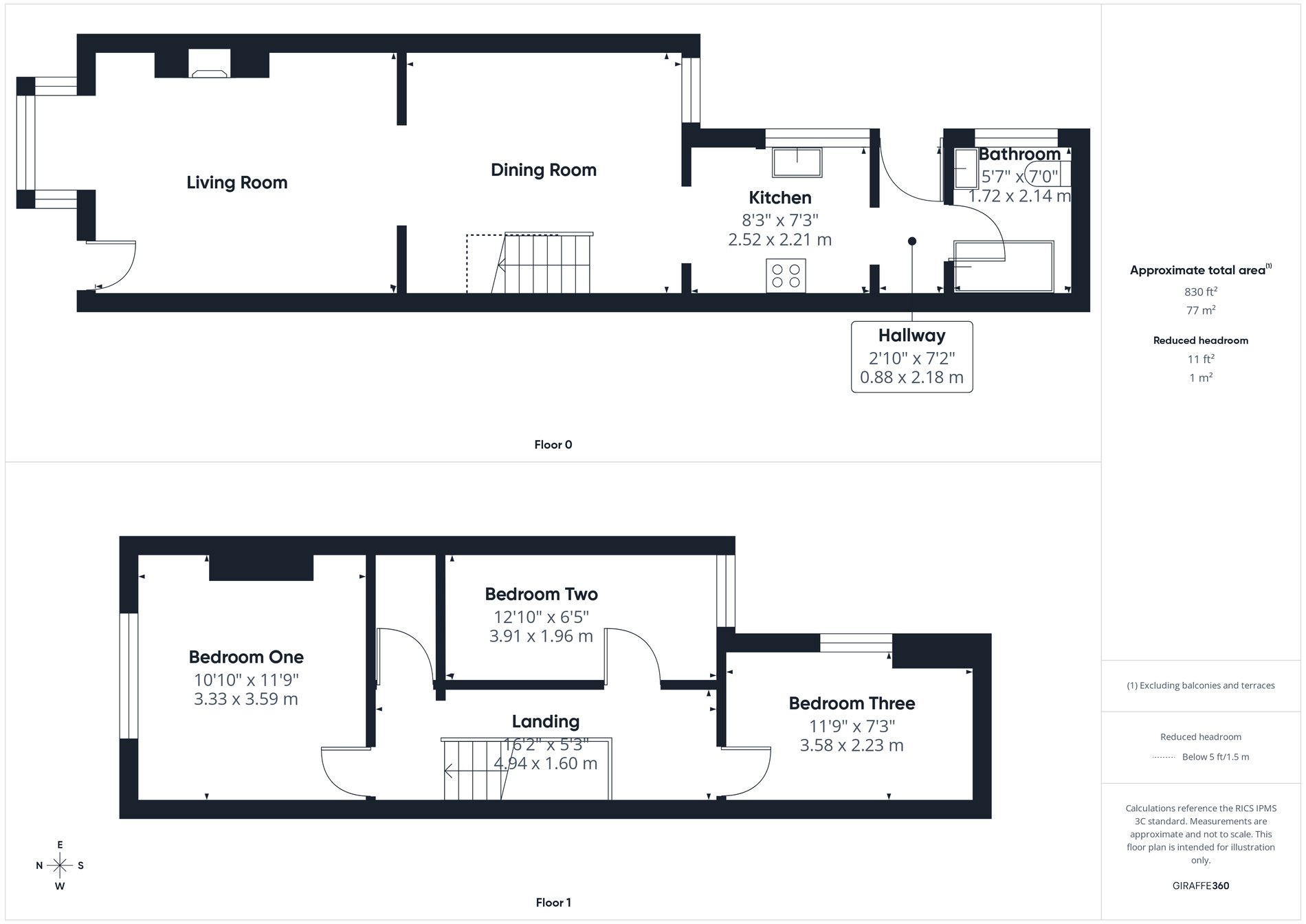
PorchAccessed through a wooden glazed door and having tiled flooring.
Living Room14' 1" x 11' 8" (4.29m x 3.56m) With a wooden door from the porch and having a decorative fireplace with a tiled insert, hearth and wooden surround, uPVC window to the front aspect, radiator, pendant light fitting and BT point.
Dining Room12' 8" x 11' 9" (3.86m x 3.58m) With uPVC window to the rear aspect, vinyl flooring, pendant light fitting and stairs off to the first floor landing.
Kitchen8' 3" x 7' 3" (2.51m x 2.21m) Fitted with a range of wall and base units having roll top worksurfaces over inset with a stainless steel sink and drainer. Tiled splash backs, uPVC window to the rear aspect, ceiling light fitting, vinyl flooring, extractor fan, space and plumbing for washing machine and freestanding gas oven.
Rear HallwayWith vinyl flooring, wall storage cupboards and uPVC door to the rear garden.
Bathroom5' 7" x 7' 0" (1.70m x 2.13m) Fitted with a three piece suite comprising off corner bath, pedestal wash basin and low flush WC. Vinyl flooring, tiled splash backs, radiator, obscure uPVC window to the rear aspect and ceiling spotlights.
LandingWith carpet flooring, built in storage cupboard, loft access and pendant light fitting.
Bedroom One10' 10" x 11' 9" (3.30m x 3.58m) With carpet flooring, uPVC window to the front aspect, radiator and pendant light fitting.
Bedroom Two12' 10" x 6' 5" (3.91m x 1.96m) With laminate flooring, uPVC window to the rear aspect, radiator and pendant light fitting.
Bedroom Three11' 9" x 7' 3" (3.58m x 2.21m) With carpet flooring, uPVC window to the rear aspect, radiator, pendant light fitting and storage cupboard housing the combi boiler.
ExternallyThe rear garden is mainly laid to lawn with a patio area and gated access to the neighbouring property with right of way.
Read more