3 bedrooms
2 bathrooms
1 reception
3 bedrooms
2 bathrooms
1 reception




Built in 2022 by Gleeson Homes, this stunning three-bedroom detached property offers contemporary living in one of the area’s most desirable new developments — Petersmith Park. This property represents a rare opportunity to own a nearly-new detached home with exceptional upgrades and uninterrupted countryside views. Boasting three generous bedrooms, modern kitchen/diner, elegant lounge and contemporary bathrooms internally. Externally you will find beautifully landscaped gardens offering, low-maintenance outdoor space ideal for relaxing or hosting. This property is the perfect balance of modern design and tranquil surroundings, it’s a home you can simply move into and enjoy from day one. Early viewing is highly recommended.
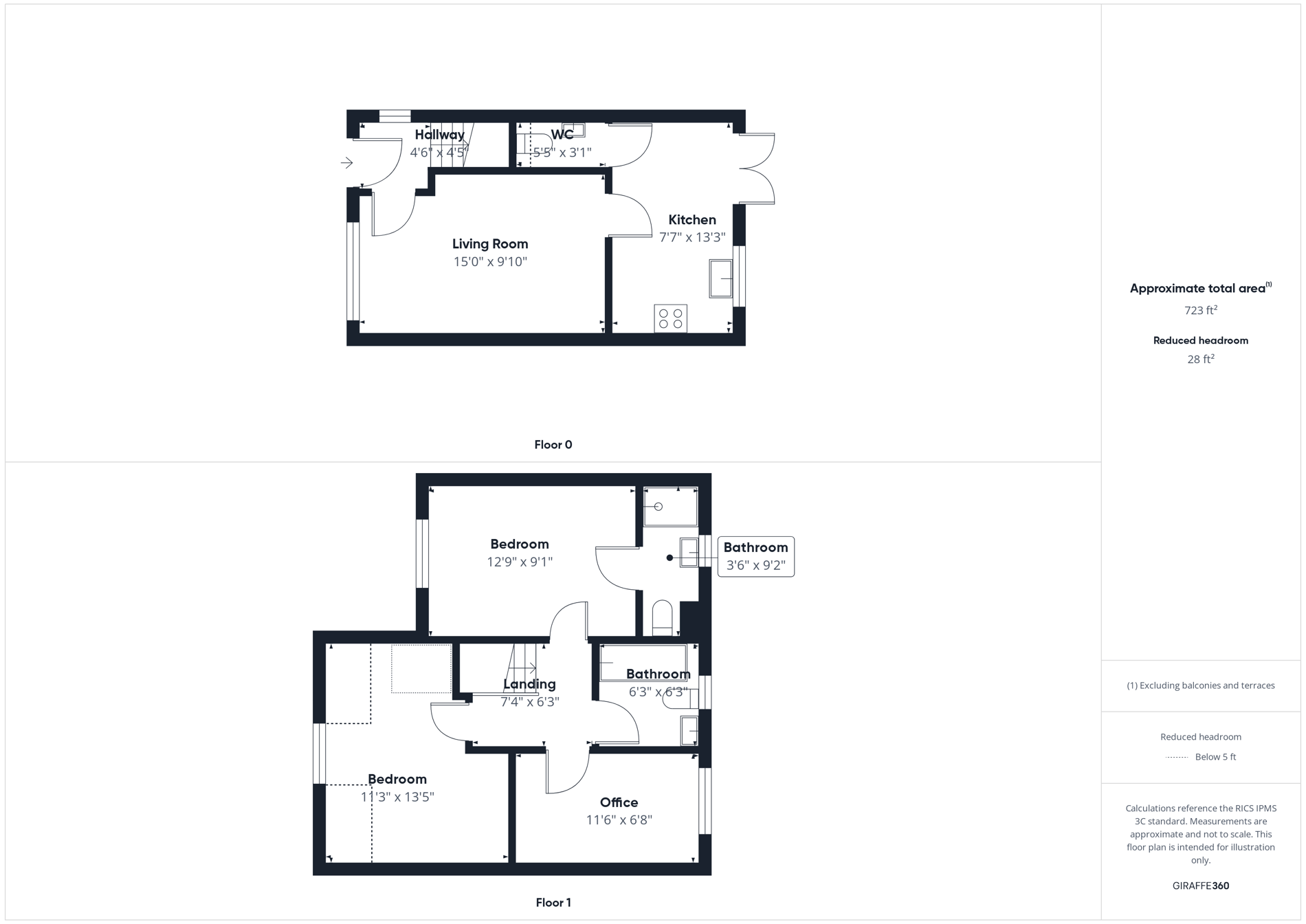
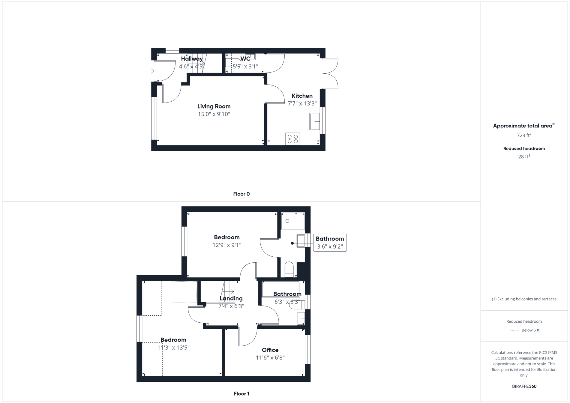
Ground Floor
Entrance HallEnter through the composite door into the entrance hall, with stairs off to the first floor, carpet flooring, radiator and door leading into the lounge.
LoungeThe spacious lounge has carpet flooring, radiator, uPVC window to the front aspect, understairs storage cupboard and doors leading into the entrance hall and kitchen/diner.
Kitchen/Diner The kitchen is fitted with wall and base units, square edge worksurfaces with inset stainless steel sink, drainer and mixer tap. Integrated electric oven, hob and extractor fan above. Space and plumbing for washing machine and free standing fridge freezer. Wood effect vinyl flooring, radiator, French doors to the rear garden, uPVC window to the rear aspect and a door leading to the cloakroom.
Cloakroom With low flush WC and hand wash basin.
First Floor
Landing With carpet flooring, doors to three bedrooms and family bathroom. Loft access.
Master Bedroom With carpet flooring, radiator and uP[VC window to the front aspect. A door leading to the ensuite shower room.
Ensuite Complete with a three piece suite comprising large walk in shower with glass screen, low flush WC and hand wash basin. Radiator, obscure window and wood effect vinyl flooring.
Bedroom Two With carpet flooring, radiator and uPVC window to the front aspect.
Bedroom Three With carpet flooring, radiator and uPVC window to the rear aspect.
Family Bathroom With a three piece suite comprising paneled bath, hand wash basin and low flush WC. Obscure window, radiator and wood effect vinyl flooring.
External
Outside To the front of the property there is a private driveway for multiple cars which leads to the integral garage which has power, lighting and an up and over door. the front is laid mainly to lawn and has a path leading to the front door. The current owners have tarmacked the whole of their boundary to allow for more off road parking.
The rear garden is laid mainly to lawn with two patio areas for seating. Raised flower beds and rear access to the garage.