2 bedrooms
2 bathrooms
1 reception
2 bedrooms
2 bathrooms
1 reception


This immaculately presented two bedroom semi detached property sits proudly on the outskirts of Ollerton and offers modern living throughout. Internally the property comprises entrance hallway, lounge, kitchen diner with patio doors to the rear garden and a cloakroom to the ground floor. To the first floor there are two good size double bedrooms and a family bathroom. Externally, the property benefits from a private driveway offering ample off road parking, together with an enclosed rear garden. This modern home is ideally suited to first-time buyers, professional couples, or those seeking a downsize in a quiet yet convenient location. Viewing is highly recommended to appreciate all this property has to offer.
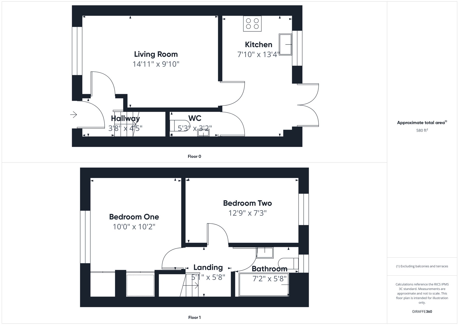
Entrance HallAccessed through a composite door to the front aspect and having carpet flooring, radiator, pendant light fitting and stairs off to the first floor landing.
Lounge2.99m x 4.54m (9' 10" x 14' 11") With laminate flooring, uPVC window to the front aspect, ceiling light fitting, radiator, under stairs storage, TV & BT points.
Kitchen Diner4.04m x 2.39m (13' 3" x 7' 10") Fitted with a range of wall and base units having roll top work surfaces over inset with a stainless steel sink, drainer and mixer tap. Integrated appliances include electric oven and gas hob with extractor hood over. Tiled splash backs and flooring, uPVC window to the rear aspect, radiator, two ceiling light fittings, wall mounted boiler, French doors to the rear garden, space and plumbing for a washing machine and fridge freezer.
WC0.96m x 1.60m (3' 2" x 5' 3") Fitted with a low flush WC and wall mounted hand wash basin. Tiled flooring, ceiling light fitting, radiator and extractor fan.
First Floor LandingWith carpet flooring, radiator, pendant light fitting and loft access.
Bedroom One3.10m x 3.05m (10' 2" x 10' 0") 3.10m x 3.05m (10' 2" x 10' 0") With carpet flooring, uPVC window to the front aspect, built in storage, pendant light fitting and radiator.
Bedroom Two2.21m x 3.88m (7' 3" x 12' 9") With carpet flooring, uPVC window to the rear aspect, pendant light fitting and radiator.
Bathroom1.73m x 2.18m (5' 8" x 7' 2") Fitted with a three piece suite comprising of bath with mixer shower over, pedestal hand wash basin and low flush WC. Obscure uPVC window to the rear aspect, vinyl flooring, chrome heated towel rail, tiled splash backs, ceiling light fitting and extractor fan.
ExternallyTo the side of the property is a private driveway offering ample off road parking with gated access to the rear garden. The rear garden is laid to lawn with an outside tap.
Read more