2 bedrooms
1 bathroom
1 reception
2 bedrooms
1 bathroom
1 reception




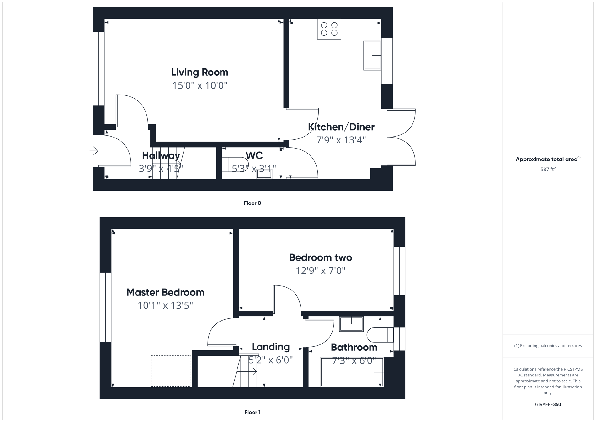
Entrance Hall Enter through the composite door into the entrance hall with carpet flooring, stairs off to the first floor and door leading into the lounge.
Lounge With laminate flooring, radiator, under stairs storage cupboard, uPVC window to the front aspect and doors leading into the entrance hall and kitchen/diner.
Kirtchen/Diner Fitted with wall and base units, square edge worksurfaces' with inset stainless steel sink, drainer and mixer tap. Integrated oven and hob with extractor above. Space and plumbing for washing machine, dishwasher and freestanding fridge/freezer. Dining area, vinyl flooring, door leading into the cloak room and uPVC window and french doors to the rear garden.
Cloakroom With low flush WC and hand wash basin.
Landing Carpet flooring, doors leading to the two bedroom, family bathroom and loft access.
Master Bedroom With carpet flooring, radiator and uPVC window to the front aspect.
Bedroom Two With carpet flooring, radiator and uPVC window to the rear aspect.
Bathroom Fitted with a three piece suite comprising bath with main fed shower over and glass screen. Low flush WC, hand wash basin, part tiled walls, radiator, obscure window and vinyl flooring.
Outside The front of the property is laid to lawn and has a private driveway that leads to the garage.
The rear garden is laid mainly to lawn, there is a patio pathway leading out the garage rear door and a decked area for seating.